Villa C – Construction neuve HPE à Thônex
Thônex Maisons CHF 2'850'000
Référence
1707villaC
Pièces
5
Chambres
3
Surface habitable
196 m2
Surface terrain
408 m2
Description
Découvrez notre nouveau projet de 3 villas Hautes Performances Énergétiques (HPE) à Thônex, alliant confort, modernité et qualité de vie.
Ce projet exclusif se compose de trois villas contemporaines, pensées pour offrir à leurs futurs occupants un cadre de vie fonctionnel, lumineux et durable.
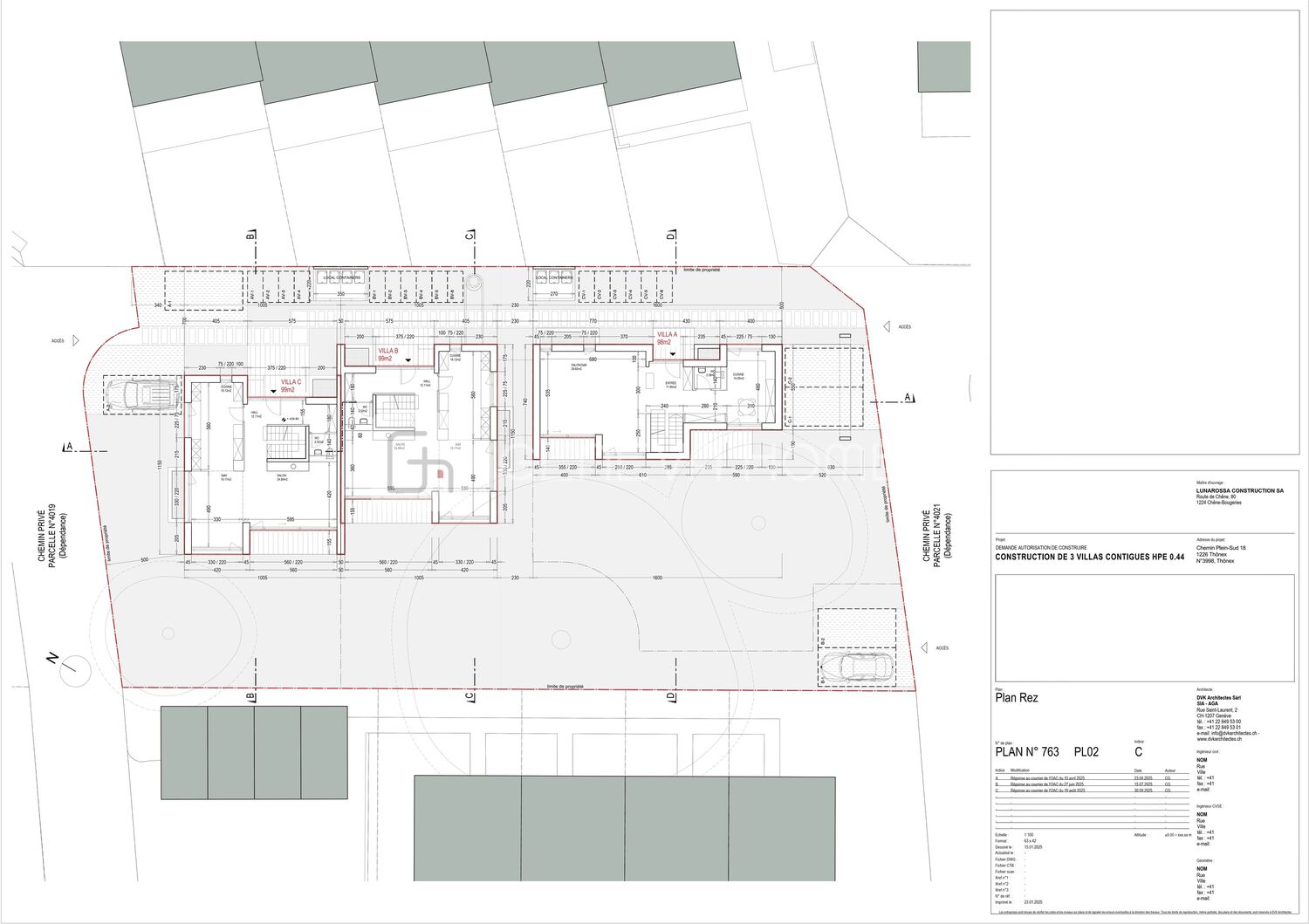
La Villa C, implantée sur une parcelle de 408 m², se développe sur trois niveaux, organisés comme suit :
Un rez-de-chaussée comprenant :
- un hall d’entrée avec armoires intégrées,
- un WC visiteurs,
- une cuisine entièrement équipée ouverte sur la salle à manger,
- un vaste séjour baigné de lumière, agrémenté d’une cheminée à l’éthanol, avec accès direct aux espaces extérieurs.
Un premier étage offrant :
- deux chambres juniors en suite,
- une spacieuse suite parentale avec dressing et salle de bains attenante,
- un accès à un balcon de 5.86 m² depuis la suite parentale.
Un sous-sol complet bénéficiant :
- d’une grande salle de jeux,
- d’une cave,
- d’une buanderie,
- d’un local technique,
- d’une salle de douche avec WC.
Les espaces extérieurs comprennent une terrasse de 8.7 m² ainsi qu’un balcon de 5.86 m² à l’étage, permettant de profiter pleinement des beaux jours.
Chaque villa du projet dispose également de :
- 2 places de parking,
- emplacements dédiés pour vélos et motos,
- un espace couvert pour le stockage des containers à déchets.
Un projet idéal pour les familles à la recherche d’une villa neuve, performante sur le plan énergétique et située dans un environnement résidentiel prisé.
Pour plus de renseignements, n’hésitez pas à nous demander la brochure de vente complète.
Nous contacter

Jack O'Neill
Mobile : +41 78 8736 366
Tel : +41 22 736 3293
Email : jack@genevahomes.ch