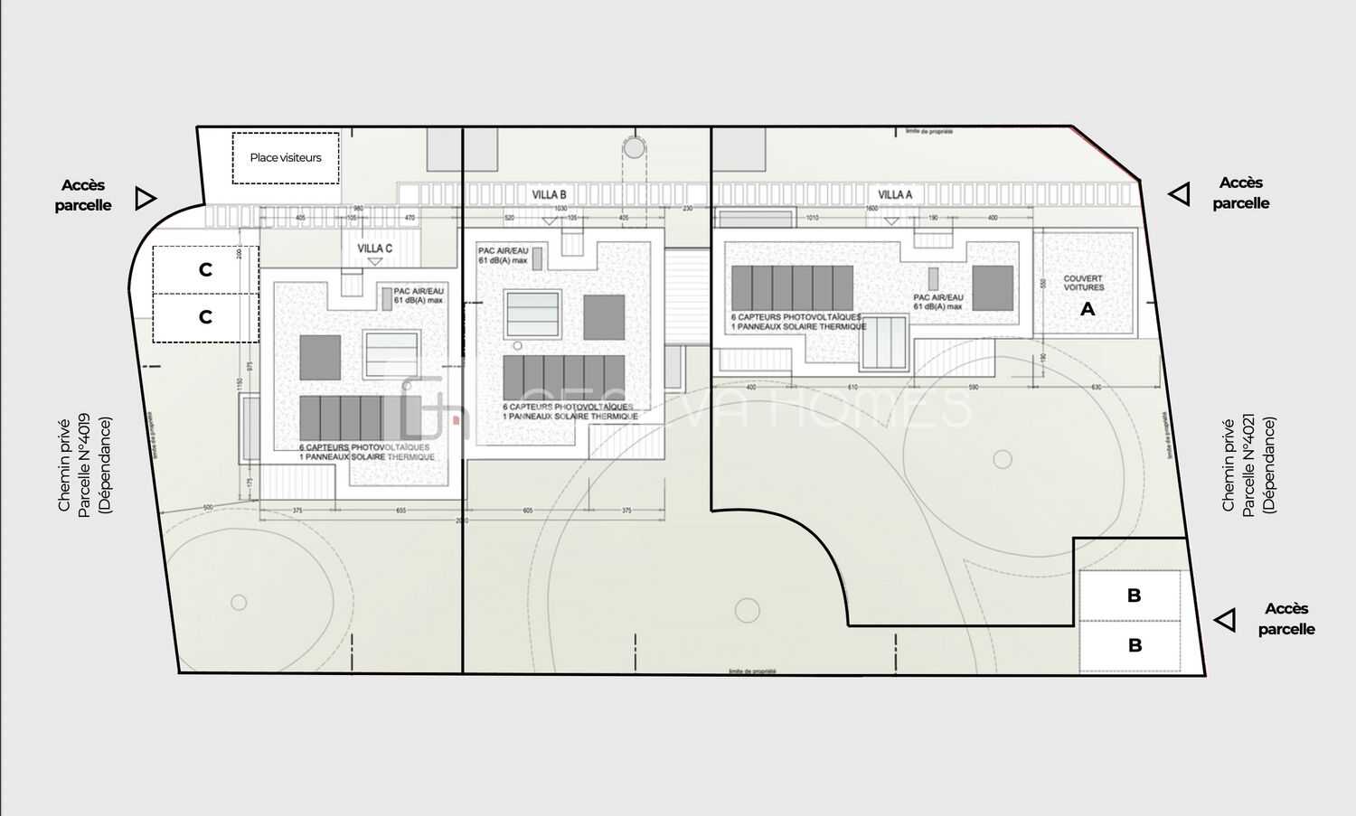
Villa C – New HPE Construction in Thônex
Thônex Houses CHF 2'850'000
Reference
1707villaC
Rooms
5
Bedrooms
3
Living space
196 m2
Plot size
408 m2
Descrption
Discover our new project of 3 High Energy Performance (HPE) villas in Thônex, combining comfort, modern design, and quality of life.
This exclusive development consists of three contemporary villas, designed to offer future residents a functional, bright, and sustainable living environment.
Villa C, set on a 408 sqm plot, is arranged over three levels, organized as follows:
A ground floor comprising:
- an entrance hall with built-in cupboards,
- a guest toilet,
- a fully equipped kitchen open onto the dining area,
- a spacious living room filled with natural light, featuring an ethanol fireplace and direct access to the outdoor areas.
A first floor offering:
- two junior bedrooms, each with its own en-suite bathroom,
- a generous master suite with a walk-in wardrobe and en-suite bathroom,
- access to a 5.86 sqm balcony from the master suite.
A full basement benefiting from:
- a large games room,
- a cellar,
- a laundry room,
- a technical room,
- a shower room with toilet.
The outdoor spaces include an 8.7 sqm terrace as well as 5.86 sqm of balcony space on the upper level, ideal for enjoying outdoor living.
Each villa in the project also benefits from:
- 2 parking spaces,
- dedicated bicycle and motorcycle parking,
- covered storage for waste containers.
An ideal project for families seeking a new-build villa with high energy performance, located in a desirable residential environment.
For further information, please do not hesitate to request the full sales brochure.
Contact us

Jack O'Neill
Mobile : +41 78 8736 366
Phone : +41 22 736 3293
E-Mail : jack@genevahomes.ch